Hygge

Modern Farmhouse

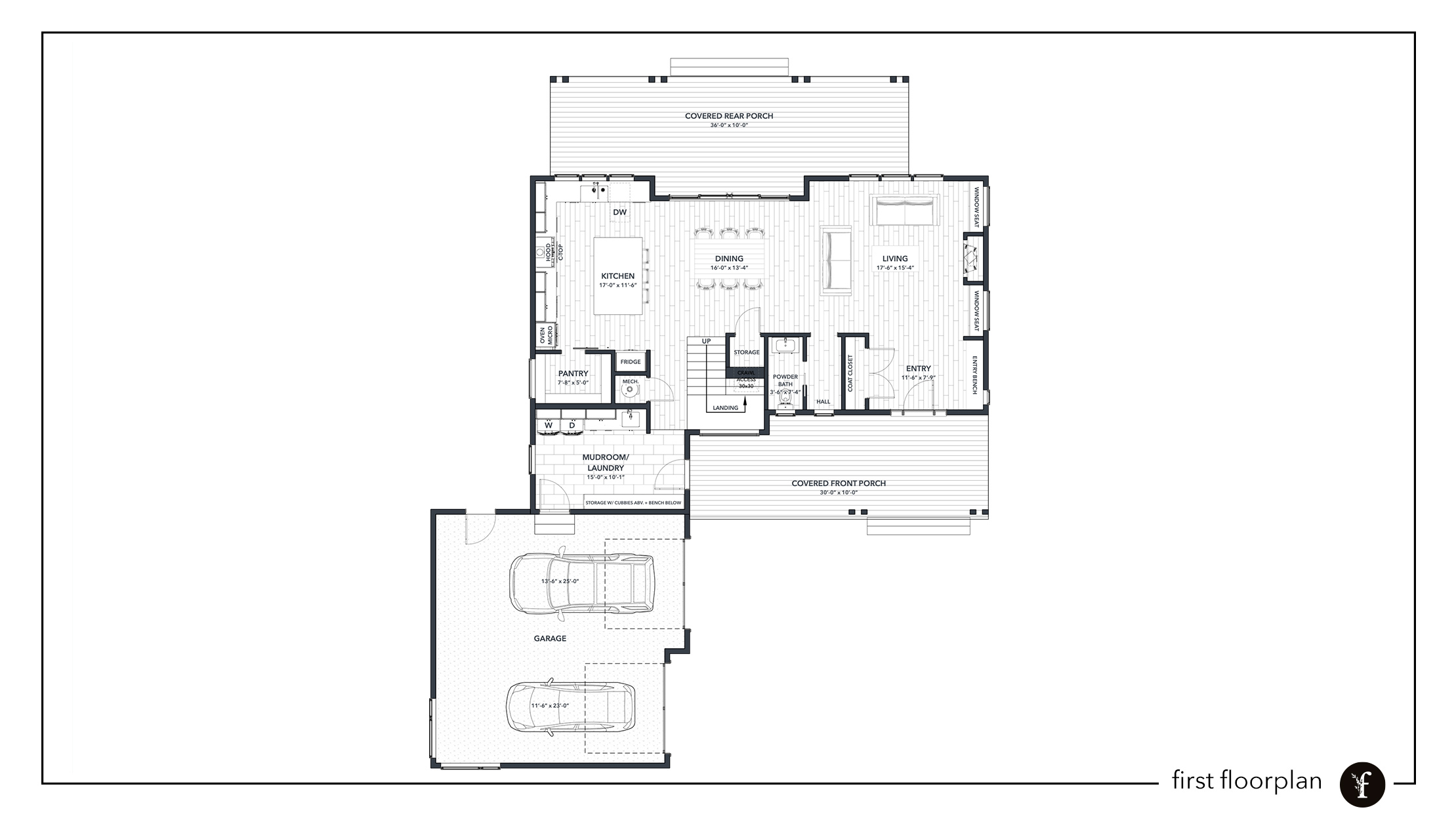
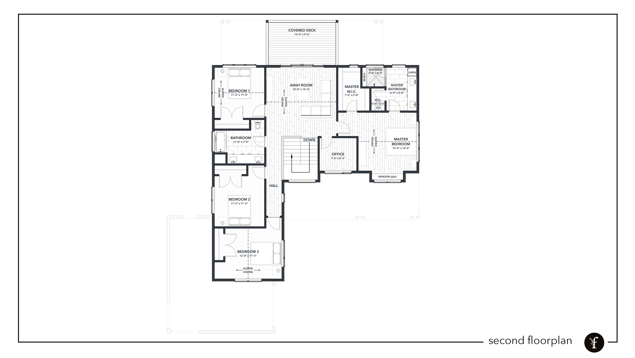
2770 sq ft

footprint
56′ W x 69-6′ L

4 bedroom

2.5 bath

2 car attached
garage

Hygge – Full Construction Package

CONNECTION | TOGETHERNESS | FLOW

Inspired by the timeless qualities of the farmhouse style, with a vibrant new twist. Features beautiful, modern updates throughout interior and exterior — an innate warmth and clean functionality perfect for growing families. Open, utilitarian entry, functional kitchen and large island, walk-in-pantry, office space, central family room, nestled within three large decks which invite relaxation, reflection, and gathering for “porch time” in all seasons.

Price range: $4,500.00 through $5,000.00

What’s in a Foxtail Plan Purchase?

Every Foxtail Plan purchase includes a full set of architectural construction documents delivered digitally with a USB flash drive as well as a printed box set with full-size scaled drawings, specifications, and details.

Our complete floor plan sets include:

  • Cover Sheet
  • Floor Plans
  • Roof Plans
  • Reflected Ceiling Plans
  • 3D Perspective Elevations
  • 2D Exterior Elevations
  • Building Sections
  • Interior Elevations
  • Exterior Details & Specifications
  • Interior Details & Specifications
  • Door & Window Schedules
  • Electrical Plan
  • Cover Sheet
  • Floor Plans
  • Roof Plans
  • Reflected Ceiling Plans
  • 3D Perspective Elevations
  • 2D Exterior Elevations
  • Building Sections
  • Interior Elevations
  • Exterior Details & Specifications
  • Interior Details & Specifications
  • Door & Window Schedules
  • Electrical Plan

Have some modifications you’d like to make? No problem, we're here to help. Please send us a list of what you’re hoping to accomplish and our team will get back to you.